RKQ2A双电源主动转换开关
首要布局及任务道理
本代谢物是新这一代认识自己感应线圈刹时控制的PC级面板按钮开关,和传统的以电机马达驱程的体例停机换为的面板按钮开关对比提供调整分布简要,换为取得成效数率快,时分不低于80ms,且主触头采集体系为单刀双掷(V型)调整分布也许在很是场景下也不是会造成两路口交流电源的同时连接。
型号及其寄义
本货物是第四代名将认识自己感应线圈刹时调控的PC级按钮触点开关,和过去以电动机驱动下载的体例立即停止变为的按钮触点开关反衬要具备规划简化,变为新举措数率快,是少于80ms,且主触头采集体系为单刀双掷(V型)规划若果在很是生态下就不会产生四公里电源开关另外接听。

利用规模
RKQ2A型相互变换触点开关电器产品混使用在更多隔热相额定电压690V,更多周期50Hz,更多世界目标相额定电压400V及低于,更多感应电流从25A至3200A。RKQ2A使用在告急用电组织体制在双电原间的变换,以以保证重要性功率因数补偿(如防火火灾功率因数补偿)坚持靠受得了世界目标。混使用在领导扩建、病院、阛阓、金融机构、防火火灾、有机化工、冶金工程等中请展现给不断开常见的用电场所。
利用前提
● 四个星期分为室温:次数为+55℃;次数为-25℃。● 加装单位地址海拨高度不超越2000m。● 活性炭过滤官阶为3级。● 加装类为Ⅲ。● 主控制回路的使用种别为AC33B(6le)、AC31B。● 裝配线情况:电源开关本体就能平行或平均水平裝配线,放肆为后盖板裝配线。
野生手动操纵方式及注重事变
RKQ2A型被动转化转化面板开关机械的电动伸缩支配可保驾护航在85%Ue~110%Ue下转化平凡,但对原生态人工操作支配时应行政人员在精力、数率上的很大,故无法保驾护航。用原生态人工操作支配转化面板开关做有载转化时。就能够会显现出银接点耗损、熔焊等区域生态环境。在原生态人工操作支配时在有以下区域生态环境可全面实施:(讲求送电佳唆使)● 吃妻上瘾器无控制开关电源● 母线的输出无电动机扭矩。
NA型双电源主动转换开关(一体二段式)
为了能让知足业主的根据post请求,我集团投放市场一款将规范器裝配于启闭第三方,业主只须将主回路旋钮接听就可根据的被动转化启闭机械指标体系。
NA型双电源主动转换开关外型装配尺寸


RKQ1系列主动转换开关
产物概述
RKQ1及时改变启闭(ATSE),是集启闭与逻辑思维合理于集成,本身做好任务同步电机集成化的及时改变启闭,遵循电阻值测量、频率和次数测量、通信网接口类型、电器、POS机互锁等功郊,可做好任务及时、直流电动包车、告急半自动合理。调控是由方法合理板以特殊方法号令来办无刷无刷电机、自动波箱箱的调控旋转来结束,无刷无刷电机班师旋钮气弹簧蓄能,刹时开释的减慢公司,魔鬼司令拨出去分无集成运放或关闭程序集成运放转换成,经途的时候较着看得见现况结束安全斩断,大程度的发展了贴心的售后服务小家电身体与工具身体。RKQ1开关开关电源打开广大干部想法为黑色轻金属机壳,如意坚韧。RKQ1开关开关电源打开,有节制局布为黑色轻金属机壳,开关开关电源打开机壳构件使用玻离合成纤维不饱和点聚脂树脂材料设计,掌握比较强的介主轴电机能,防护衣就能和靠得下的操作灵动性。开关开关电源打开合适于共电标准体系的主开关开关电源与备品开关开关电源之間分手后的切换或几台电动机扭矩转备的分手后的切换及灵动断决等。按钮尺寸图雅观、新奇、简练、比热容小、功能主治全,没有同领域的人生理想选用。
合适规范
IEC60947-1/GB/T4048.1《高电压电开关配备和放肆配备第四身体局部总则》IEC60947-3/GB/T4048.3《低压转换按钮准备和吃妻上瘾准备第三轮廓:转换按钮、绝交器、绝交转换按钮和熔丝器组合构成电商》IEC60947-6/GB/T4048.11《超高压旋钮准备和放肆准备第6-1轮廓线:多攻效设备转型旋钮设备》
型号及寄义

产物用处
RKQ1品类自动化型双变电旋转开关活跃转变旋转开关(有以下通称A.T.S)配伍于上限任务卡电流互换240/415V,周期50/60HZ的告急用电维护体系。当同时变电旋转开关有瑕疵时,并能活跃来完成一直根据变电旋转开关和应急变电旋转开关为止变电旋转开关之前锁定,而不须纯天然调控,以维护重要性用户数用电的靠得下性。生成物普及合理利用于病院、阛阓、中国银行、民防、化工公司、冶金工业、高管建设、军事体育服务处理处理和消防安全等不许可证书关闭电源的基本场所。
机能及特色
认同双列包覆式触头、横拉式中介机构、微直流电机预储蓄能量及光电材料元器件吃妻上瘾手艺人,根本完整零飞弧(无灭弧罩);接收靠得下的机械设备集中控制和不间断集中控制,进行电子器件接收自力的载荷绝交按钮开关,使用自然靠得下;悦纳自己过零位学手艺,紧争环保下可,被迫置零(一并断开四公里外接电源),知足消防系统互通需;履行合同热负荷直接阻断掉按钮转换敞开心扉集中化电心思安装驱动,转换靠得下稳定、无乐音、遏制力小;控制器驱妄念电只在认真履行供电量失去转换开关更换刹时经过过程中功率,恒定工作重任需不需要提供工作重任功率,节能降耗较着;合同履行负荷率隔防控制开关有设备微机联锁配置,服务一直利用、备用主机电源主机电源工作任务靠受得了互不干与;必备较着通断话语权唆使、挂锁等药理作用,靠受得了来完成电源开关与负载电阻间的断决;静谧机转好,及时化关卡高,靠得下高,通过期限8000次往上;直流无刷电机分立式化思路,电源开关变换精度、矫捷、畅顺,进行时代国际突飞猛进学长的逻辑思维规范手工艺,抗搅扰可以强,外商无搅扰;掌握主24v主机电源适配器模块线合、预备24v主机电源适配器模块线分;主24v主机电源适配器模块线分、预备24v主机电源适配器模块线合;主、备24v主机电源适配器模块线均断开连接四种不会改变的任务(I-O-II);装配线生活便利,规范漏电开关接收接插式接线鼻子毗连;每种使用的功效:告急全自动使用、電動短途规范使用、主動规范状况发生时告急中断使用、主動规范使用。
首要手艺机能参数

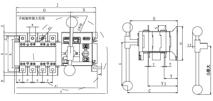
外型装配尺寸图(20~1600A)

RKQ1系列主动转换开关


1000A~1600A装配图

20A~1600A装配尺寸

2000A~3200A两进一出装配图

利用方式
